MİMARLIK
ANASAYFA
HAKKIMIZDA
PROJELER
İLETİŞİM
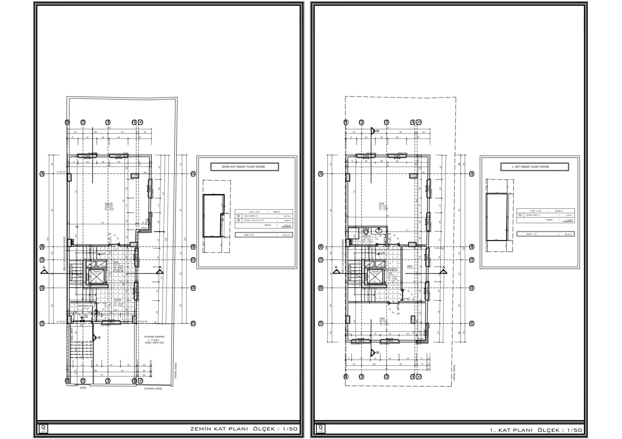
845 / 32 - VİLLA KOŞUYOLU
Previous
Next
×
Close